Opis
Wkłady kominkowe HEAT proste z otwieraniem drzwiczek na bok
Prosty kształt i idealna konstrukcja wkładu kominkowego HEAT z otwieraniem drzwiczek na bok oferuje różnorodne zastosowanie. Pozwól sobie na wyjątkowe chwile spędzone w cieple rodzinnego zacisza i odkryj piękno żywych płomieni ognia.
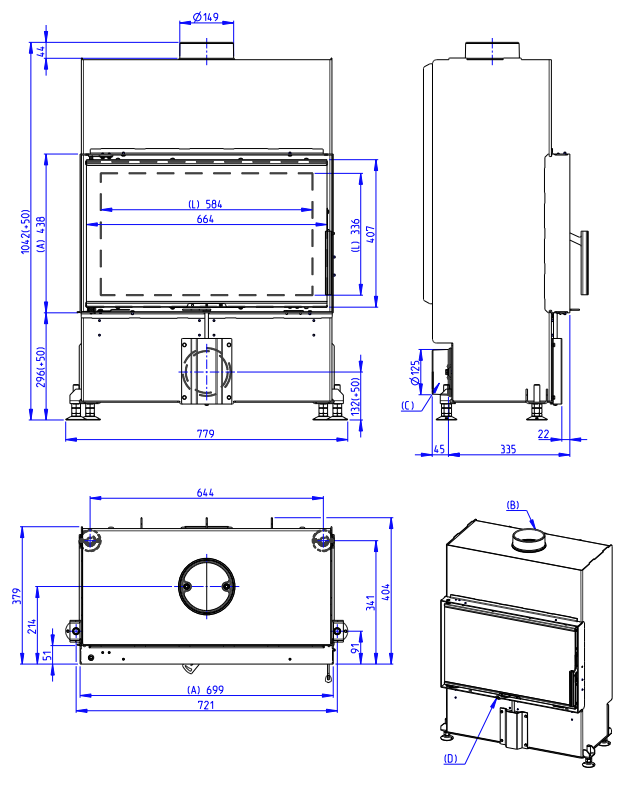
Wkłady kominkowe HEAT przeznaczone są do pracy konwekcyjnej i akumulacyjnej za pomocą kratek wentylacyjnych. Rama drzwi wykonana jest ze specjalnego, sztywnego profilu walcowanego. Szyba drzwiczek posiada nadruk. Wkłady posiadają system CDP – centralne doprowadzenie powietrza zewnętrznego. Komora spalania wyłożona jest specjalnym trwałym materiałem IGNITON, dostępnym w kolorze jasnym lub czarnym, zgodnie z preferencjami klienta. Ruszt żeliwny jest odchylany i posiada wyjmowany popielnik. Dzięki dopływowi powietrza wtórnego, które opływa szybę drzwiczek, nie dochodzi do osadzania zabrudzeń. Regulację dopływu powietrza pierwotnego i wtórnego można prowadzić za pomocą jednego elementu sterującego. Do wkładów kominkowych można dokupić akumulacyjny zestaw boczny oraz górne pierścienie akumulacyjne Mammoth, które przedłużą czas promieniowania ciepła o więcej niż 12 h. Innowacyjny system odprowadzania spalin – Double spin, zwiększa skuteczność i ekologiczność wkładu kominkowego.
AKUMULACYJNY ZESTAW GÓRNY ROMOTOP MAMMOTH dla wkładów kominkowych o średnicy odprowadzenia spalin 150 mm
• wysoka pojemność cieplna akumulacyjnego zestawu Romotop MAMMOTH
• maksymalnie szybkie przekazywanie ciepła spalin kształtek akumulacyjnych
• akumulacja ciepła – grzanie także po zakończeniu palenia we wkładzie
• uzupełnienie lub zwiększenie akumulacyjnych zdolności zabudowy
• specjalne metalowe elementy umieszczone pomiędzy kształtkami akumulacyjnymi – doskonałe przenoszenie ciepłą
• waga zestawu górnego 70 kg

![ROMOTOP HEAT 4g 70.44.14 [KW] 2,9-7,5](https://elmeshome.pl/wp-content/uploads/2025/11/heat_4g_70-44-14_krbova_vlozka_romotop_th.jpg)
![ROMOTOP HEAT 4g 70.44.14 [KW] 2,9-7,5 - obrazek 2](https://elmeshome.pl/wp-content/uploads/2025/11/1-8.png)
![ROMOTOP HEAT 4g 70.44.14 [KW] 2,9-7,5 - obrazek 3](https://elmeshome.pl/wp-content/uploads/2025/11/2-9.png)


![ROMOTOP HEAT 4g 59.50.04 [KW] 2,4-6,2](https://elmeshome.pl/wp-content/uploads/2025/11/heat_4g_59-50-04_wklady_kominkowe_romotop_big-300x300.jpg)
![ROMOTOP HEAT R/L 4g 65.51.24 [KW] 5,2-13,5](https://elmeshome.pl/wp-content/uploads/2025/11/heat_r_4g_s_65-51-40-24_krbova_vlozka_romotop_th-300x300.jpg)
![ROMOTOP HEAT R/L 4g 60.44.33.24 [KW] 3,4-8,8](https://elmeshome.pl/wp-content/uploads/2025/11/heat_r_4g_s_60-44-33-24_krbova_vlozka_romotop_th-300x300.jpg)
![ROMOTOP HEAT R/L 4g 70.44.33.24 [KW] 4,5-11,7](https://elmeshome.pl/wp-content/uploads/2025/11/heat_r_4g_s_70-44-33-24_krbova_vlozka_romotop_th-300x300.jpg)
