Opis
Wkłady kominkowe HEAT narożne z otwieraniem drzwiczek na bok i łączoną szybą
Narożne wkłady kominkowe HEAT z otwieraniem drzwiczek na bok są efektownym dodatkiem do wnętrz w nowoczesnym stylu. Pozwól się oczarować przyjemnym ciepłem, które sprawi, że każdy dom stanie się przytulny oraz nada mu ponadczasowy styl oraz wyjątkową atmosferę.
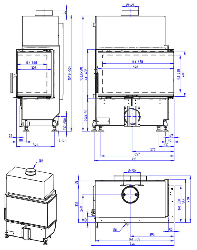
Wkłady kominkowe HEAT przeznaczone są do pracy konwekcyjnej i akumulacyjnej za pomocą kratek wentylacyjnych. Szyba narożna (lewa, prawa) wkładu jest dwuczęściowa. Rama drzwi wykonana jest ze specjalnego, sztywnego profilu walcowanego. Szyba drzwiczek posiada nadruk. Wkłady posiadają system CDP – centralne doprowadzenie powietrza zewnętrznego. Komora spalania wyłożona jest cegłami szamotowymi i posiada wychylne palenisko żeliwne z popielnikiem. Komora spalania wyłożona jest specjalnym trwałym materiałem IGNITON, dostępnym w kolorze jasnym lub czarnym, zgodnie z preferencjami klienta. Ruszt żeliwny jest odchylany i posiada wyjmowany popielnik. Dzięki dopływowi powietrza wtórnego, które opływa szybę drzwiczek, nie dochodzi do osadzania zabrudzeń. Regulację dopływu powietrza pierwotnego i wtórnego można prowadzić za pomocą jednego elementu sterującego. Do wkładów kominkowych można dokupić akumulacyjny zestaw boczny oraz górne pierścienie akumulacyjne Mammoth, które przedłużą czas promieniowania ciepła o więcej niż 12 h. Innowacyjny system odprowadzania spalin – Double spin, zwiększa skuteczność i ekologiczność wkładu kominkowego.
AKUMULACYJNY ZESTAW GÓRNY ROMOTOP MAMMOTH dla wkładów kominkowych o średnicy odprowadzenia spalin 150 mm
• wysoka pojemność cieplna akumulacyjnego zestawu Romotop MAMMOTH
• maksymalnie szybkie przekazywanie ciepła spalin kształtek akumulacyjnych
• akumulacja ciepła – grzanie także po zakończeniu palenia we wkładzie
• uzupełnienie lub zwiększenie akumulacyjnych zdolności zabudowy
• specjalne metalowe elementy umieszczone pomiędzy kształtkami akumulacyjnymi – doskonałe przenoszenie ciepłą
• waga zestawu górnego 70 kg

![ROMOTOP HEAT R/L 4g 70.44.33.24 [KW] 4,5-11,7](https://elmeshome.pl/wp-content/uploads/2025/11/heat_r_4g_s_70-44-33-24_krbova_vlozka_romotop_th.jpg)
![ROMOTOP HEAT R/L 4g 70.44.33.24 [KW] 4,5-11,7 - obrazek 2](https://elmeshome.pl/wp-content/uploads/2025/11/1-13.png)
![ROMOTOP HEAT R/L 4g 70.44.33.24 [KW] 4,5-11,7 - obrazek 3](https://elmeshome.pl/wp-content/uploads/2025/11/2-14.png)


![ROMOTOP HEAT 4g 59.59.04 [KW] 4,2-10,8](https://elmeshome.pl/wp-content/uploads/2025/11/heat_4g_59-50-04_wklady_kominkowe_romotop_big-300x300.jpg)
![ROMOTOP HEAT R/L 4g 60.44.33.24 [KW] 3,4-8,8](https://elmeshome.pl/wp-content/uploads/2025/11/heat_r_4g_s_60-44-33-24_krbova_vlozka_romotop_th-300x300.jpg)
![ROMOTOP HEAT R/L 4g 65.51.24 [KW] 5,2-13,5](https://elmeshome.pl/wp-content/uploads/2025/11/heat_r_4g_s_65-51-40-24_krbova_vlozka_romotop_th-300x300.jpg)
![ROMOTOP HEAT 4g 80.50.04 [KW] 5,6-14,4](https://elmeshome.pl/wp-content/uploads/2025/11/heat_4g_80-50-04_krbova_vlozka_romotop_th-300x300.jpg)
